BIS ZU 40 % NACHLASS FÜR FAMILIEN AUF REINEN QUADRATMETERPREIS MÖGLICH!
 
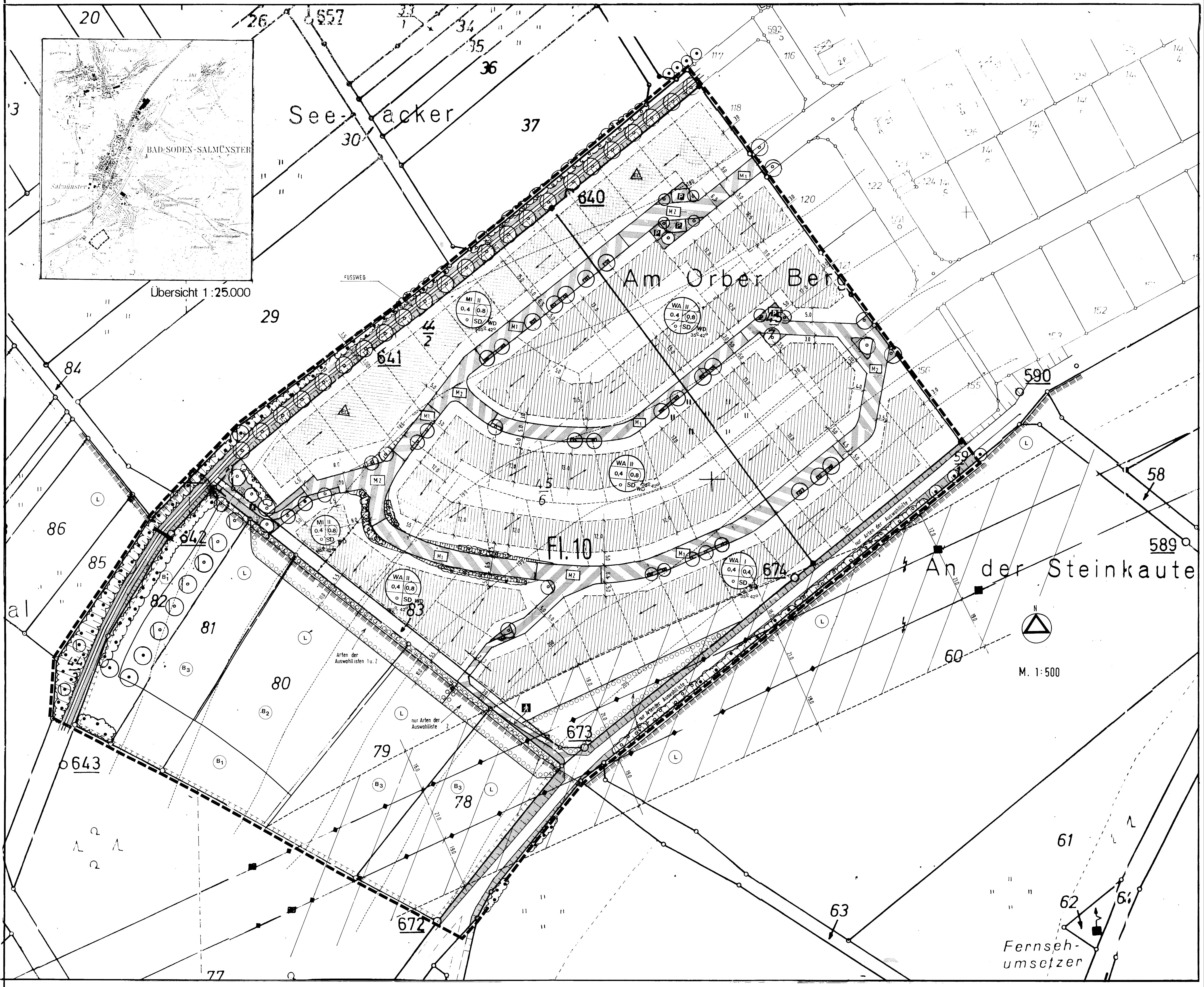
 Das Wohnbaugebiet „Orber Berg“ befindet sich im Stadtteil Salmünster in Hanglage mit herrlicher Fernsicht in das Kinzigtal. Trotz seiner naturnahen Lage ist das Gebiet hervorragend an die Verkehrs- und Versorgungswege angeschlossen. Ein direkter Autobahnanschluss (A66) sowie der Bahnhof Salmünster sichern die Anbindung an das Ballungszentrum Rhein-Main. Das Baugebiet ist in zwei Bauabschnitte unterteilt. Derzeit steht Flächen im Bauabschnitt 1 zur Vergabe.
 
 In weniger als einem Kilometer befindet sich das Nahversorgungszentrum Palmusacker. Weitere Einkaufsmöglichkeiten bieten die historischen Altstädte.
 
 Das Mittelzentrum (14.000 EW) verfügt über eine moderne Infrastruktur, Gewerbebetriebe und die vielfältigen Gesundheitseinrichtungen einer Kurstadt. Als Lebensmittelpunkt bietet es eine hohe Lebens- und Wohnqualität. Die Spessart Therme ist ein Highlight für Gäste und Einwohner. Abgerundet wird das Angebot durch viele Freizeiteinrichtungen und sportlichen Aktivitäten in den nahen Naturparks Spessart und Vogelsberg.
 
 In der Stadt gibt es ein reges Vereinswesen mit aktiven Jugendabteilungen. Flexible Betreuungseinrichtungen für Kinder, ein Tagesmütter-Netzwerk, Kindergärten, Kinderärzte und mehrere Schulen sowie vielfältige Einrichtungen für Familien machen Bad Soden-Salmünsters zur kinder- und familienfreundlichen Stadt. Ein Förderprogramm gewährt ansiedlungswilligen Familien mit Kindern beim Erwerb von städtischen Grundstücken einen Nachlass von bis zu 40 %.
Bauplätze gesamt
62
Reservierte Bauplätze
4
Freie Bauplätze
1
kleinster freier Bauplatz
571,00 m²
größter freier Bauplatz
571,00 m²
Bonitätsauskunft
| Nr. | Größe [m²] | Preis [€/m²] | Gesamtpreis [€] | Nutzung | GRZ | GFZ | Status | Infos | Exposé | Anfrage | 
| 157 | 571,00 | 170,00 | 97.070,00 | WA | 0,40 | 0,40 | frei |  | Anfrage stellen » | 
Das Mittelzentrum Bad Soden-Salmünster (14.000 EW) verfügt über eine moderne Infrastruktur, zahlreiche Gewerbebetriebe und die vielfältigen Gesundheitseinrichtungen einer Kurstadt. Als Lebensmittelpunkt bietet der Standort seinen Bürgerinnen und Bürgern eine hohe Lebens- und Wohnqualität. Die Spessart Therme mit ihrer großen Thermalsole-Badelandschaft, der weitläufigen Saunaanlage, den Wellness- und Gesundheitsangeboten sowie der neuen Totes-Meer-Salzgrotte ist ein Highlight für Gäste und Einwohner. Abgerundet wird das Angebot durch viele Freizeiteinrichtungen und sportlichen Aktivitäten vom Golfplatz über Nordic-Walking-Parcours bis hin zu herrlichen Rad- und Wanderwegen im Kinzigtal und den nahen Naturparks Spessart und Vogelsberg.
Stadt Bad Soden-Salmünster
 Ansprechpartner
 Liegenschaften
 Herr Michael Salomon
 Rathausstraße 1
 63628 Bad Soden-Salmünster
 
Bitte fülle das untenstehende Kontaktformular aus, um mit dem Anbieter in Kontakt zu treten.
Die mit * gekennzeichneten Felder sind vom Anbieter als Pflichtfelder vorgegeben.

Alle Angaben ohne Gewähr.