Fabrik mit Neubau

Fabrik mit Neubau

Haupteingang

Haupteingang

Buero

Buero

Lounge

Lounge

Wintergarten

Wintergarten

Galerie Restaurant

Galerie Restaurant

Campus

Campus

Blick vom Parkplatz

Blick vom Parkplatz

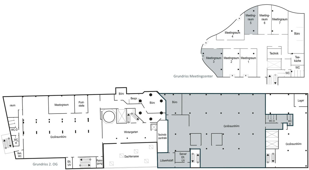
Grundriss

Grundriss

Exklusive Bürolofts mit historischem Charakter & High-End-Komfort

09111 Chemnitz, Rochlitzer Straße 19

Lastenaufzug
Personenaufzug
Dachterrasse
Terrasse
Wintergarten
Bad/WC
Stellplatz
Objektzustand: vollständig renoviert
Objekt unterliegt Denkmalschutz
rollstuhlgerecht
ohne Keller
Parkettboden
Sicherheitstechnik: Alarmanlage
Sicherheitstechnik: Kamera
barrierefrei

Angaben zur Immobilie

Gesamtfläche

2.000,00 m²

Bürofläche

2.000,00 m²

teilbar ab

350,00 m²

Portal-Objekt-Nr.

W7355643

Services

Kautionsbürgschaft

Angaben zur Infrastruktur

Entf. zur nächsten Autobahn

ca. 7,0 km

Entf. zum nächsten Flughafen

ca. 78,0 km

Entf. zum nächsten Fernbahnhof

ca. 2,0 km

Entf. zur nächsten U-/S-Bahn

ca. 2,0 km

Entf. zur nächsten Bushaltestelle

ca. 1,0 km

Entf. zu Einkaufsmöglichkeiten

ca. 1,0 km

Objektbeschreibung

Arbeiten Sie dort, wo Geschichte auf Innovation trifft. Die Haase-Fabrik bietet Ihnen außergewöhnliche Bürolofts in einem denkmalgeschützten Industrieareal. Die Räumlichkeiten bestechen durch ihren authentischen Loft-Charakter, markantes Sichtmauerwerk und beeindruckende Deckenhöhen. Große Fensterfronten sorgen für ein lichtdurchflutetes Arbeitsumfeld, das Kreativität und Professionalität gleichermaßen fördert. Ob Open-Space oder individuelle Raumaufteilung – hier finden Sie den Spielraum, den Ihr Unternehmen für modernes Arbeiten benötigt. Es stehen Räumlichkeiten ab 350 m² bis 2.000 m² zur Verfügung.

Ausstattung

- Hochwertiger Parkettboden
- Fußbodenheizung sowie Klimaanlage mit Luftbefeuchtung
- Automatisierte Jalousien und Sonnensegel
- Leistungsstarke Lastenaufzüge (bis 4 t Traglast)
- Barrierefreie und rollstuhlgerechte Zugänge
- Sicherheit durch Videoüberwachung und Transponder-System
- Eigene TRAFO-Station für ausfallsichere Energieversorgung
- Strukturierte High-Speed-Netzwerkverkabelung
- Moderne Sanitärbereiche

Sonstiges

Ein besonderes Highlight der Haase-Fabrik sind die modernen Shared Spaces: Nutzen Sie großzügige Gemeinschaftsflächen außerhalb Ihrer eigenen Mieteinheit für Meetings, Workshops oder kreative Pausen. Diese Flächen fördern den Austausch in einem inspirierenden Umfeld und bieten zusätzliche Flexibilität für Ihr Business. Besuchen Sie uns auf haasefabrik.de für weitere Eindrücke oder vereinbaren Sie direkt einen persönlichen Besichtigungstermin.

Lagebeschreibung

Die Immobilie überzeugt durch ihre erstklassige Citylage mit exzellenter Infrastruktur. In direkter Umgebung finden Sie ein urbanes Umfeld mit vielfältigen Gastronomieangeboten sowie zahlreiche Einkaufsmöglichkeiten. Die Anbindung an den öffentlichen Nahverkehr ist hervorragend, und auch das Autobahnnetz ist in wenigen Minuten erreichbar. Parkplätze stehen direkt am Objekt zur Verfügung, was eine komfortable Erreichbarkeit für Mitarbeiter und Kunden garantiert.

Objektadresse

Rochlitzer Straße 19
09111 Chemnitz

Anbieter dieses Objekts

AIG Alpha Invest Grundstücksverwaltung GmbH

Frau Nina Meinicke

Telefon zeigen

Rückrufwunsch

Impressum des Anbieters

Anfrage stellen an den Anbieter

Bitte fülle das Kontaktformular aus, um mit dem Anbieter in Kontakt zu treten.

Die mit * gekennzeichneten Felder sind vom Anbieter als Pflichtfelder vorgegeben.

Anrede:     
Ihre Nachricht an den Anbieter
* Pflichtfelder

Mit Absenden des Kontaktformulars werden Deine personenbezogenen Daten auf elektronischem Weg an den Anbieter der Immobilie übermittelt. Gleichzeitig stimmst Du zu, dass diese vom Anbieter zur Beantwortung Deiner Anfrage erhoben und verarbeitet werden dürfen. Weitere Informationen zum Datenschutz »

Angebote und Dienstleistungen

Kautionsbürgschaft

Bonitätsauskunft

Bonitätsauskunft von itsmydata

Anzeige

Diese Gewerbeimmobilie wird seit dem 04.02.2026 in der Kategorie Büros in Chemnitz auf wunschimmo.de angeboten. Die Immobilie wurde zuletzt am 11.05.2026 aktualisiert.


Alle Angaben ohne Gewähr.