Digitales Bauschild zum
Gewerbegebiet »Gewerbegebiet Alt Wietmarschen«

49835 Wietmarschen

Beschreibung des Baugebiets

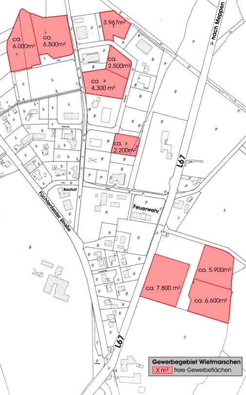
Die Gemeinde Wietmarschen kann im Ortsteil Wietmarschen Gewerbeflächen in einer Größenordnung von 5 ha anbieten. Es handelt sich um vollerschlossene und sofort verfügbare Grundstücke für Gewerbe- und Industrieansiedlung in nahezu jeder von Ihnen gewünschten Größe.

Das Baugebiet im Überblick

Gesamtgröße

10 ha

Nettobaufläche

5 ha

Freie Bauplätze

10 ha

kleinster freier Bauplatz

k. A. m²

größter freier Bauplatz

k. A. m²

Baurecht vorhanden

ja

Straßen ausgebaut

ja

Strom

vorhanden

Trinkwasser

vorhanden

Abwasser

vorhanden

Gas

vorhanden

Breitbandkabel

vorhanden

Dokumente zum Objekt

Information zu den Bauplätzen im Baugebiet

Spezifische Angaben zu den einzelnen Grundstücken können wir aktuell noch nicht erteilen. Sobald die Grundstücksbildung abgeschlossen ist, wird Sie an dieser Stelle eine aktuelle Grundstücksdatenbank informieren. Sie können jedoch schon jetzt eine allgemeine Anfrage zum Baugebiet an uns richten.

Über Wietmarschen

Die Einheitsgemeinde Wietmarschen hat rund 11.900 Einwohner und liegt im Landkreis Grafschaft Bentheim im Bundesland Niedersachsen.

Weitere Informationen zu Wietmarschen finden Sie auf der Homepage der Einheitsgemeinde.

Lagekarte

Die genaue Lage des Baugebiets ist vom Anbieter nicht hinterlegt, daher wird in der Karte die Lage von Wietmarschen dargestellt.

Anbieter dieses Objekts

Gemeinde Wietmarschen

Hauptstr. 62
49835 Wietmarschen

Rückrufwunsch

Impressum des Anbieters

Objektanfrage

Der Anbieter hat leider die Kontaktaufnahme per Anfrageformular nicht ermöglicht. Bitte nutzen Sie den nachstehenden Link, um zur Homepage des Baugebiets zu gelangen und weitere Informationen zur Kontaktaufnahme zu erhalten.

Zur Homepage des Baugebiets

Angebote und Dienstleistungen


Alle Angaben ohne Gewähr.