Digitales Bauschild zum
Wohngebiet »Bismarckstraße West«

64668 Rimbach/Odenwald – Rimbach

Beschreibung des Baugebiets

Die HLG bietet aktuell noch drei Baugrundstücke in der Kerngemeinde Rimbach/Odenwald zum Verkauf an. Die Grundstücke haben eine Größe von 511 m² bis 738 m² und können mit einem Einzelhaus (bis zu 3 WE möglich) oder einem Doppelhaus bebaut werden. Die Baugrundstücke befinden sich in schöner Ortsrandlage – ruhig gelegen, aber dennoch zentral mit guter fußläufiger Anbindung an zahlreiche Einkaufsmöglichkeiten und öffentliche Verkehrsmittel (Bahnhof Rimbach 5 Minuten Fußweg).

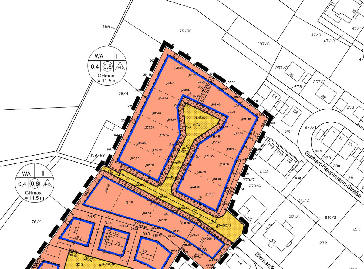
Details zu den einzelnen Grundstücken können Sie dem Grundstücksplan entnehmen. Alle weiteren Bauvorschriften finden Sie im Bebauungsplan.
Im Kaufpreis von 360,00 €/m² sind sämtliche Erschließungskosten enthalten. Das Baugebiet ist bereits voll erschlossen. Alle Anschlüsse wurden hierbei bereits vorverlegt in die Baugrundstücke. Der Endausbau wurde Ende 2025 fertiggestellt und das Baugebiet durch die Gemeinde freigegeben.

Es gelten folgende Kaufbedingungen:
Die Einhaltung einer Bebauungsverpflichtung ist zwingend. Sie haben innerhalb von 3 Jahren nach Übergabe des Grundstücks mit dem Bau zu beginnen, und innerhalb von 5 Jahren muss die Fertigstellung Ihres Wohnhauses angezeigt werden.

Darüber hinaus gilt:
1. Teilungs- und Veräußerungsverbot: Das Grundstück darf für 10 Jahre ab Beurkundung weder geteilt noch veräußert werden.
2. Residenzpflicht: Das Wohnhaus muss für mindestens 10 Jahre ab Bezugsfertigkeit durch den Käufer selbst bewohnt werden, ohne zeitliche Unterbrechung.

Bei Interesse an einem Bauplatz wenden Sie sich bitte an Herrn Torben Gallon unter 06105-4099-419 E-Mail: torben.gallon@hlg.org.

Für weitere Rückfragen steht Ihnen auch Projektleiterin Frau Birgit Röder gern unter 06105-4099-417 E-Mail: birgit.roeder@hlg.org zur Verfügung.

Das Baugebiet im Überblick

Bauplätze gesamt

4

Reservierte Bauplätze

1

Freie Bauplätze

3

kleinster freier Bauplatz

511,00 m²

größter freier Bauplatz

738,00 m²

Foto des Baugebiets

Foto des Baugebiets

Die Bauplätze im Baugebiet in der Übersicht


Nr. Größe [m²] Preis [€/m²] Gesamtpreis [€] Nutzung GRZ GFZ Status Infos Exposé Anfrage
356 511,00 360,00 183.960,00 WA 0,40 0,40 frei Exposé Anfrage stellen »
357 737,00 360,00 265.320,00 WA 0,40 0,40 frei Exposé Anfrage stellen »
358 738,00 360,00 265.680,00 WA 0,40 0,40 frei Exposé Anfrage stellen »

Über Rimbach/Odenwald

Rimbach mit seinen Ortsteilen Albersbach, Lauten-Weschnitz, Mitlechtern, Münschbach, Unter-Mengelbach und Zotzenbach, liegt im Odenwald, ca. 30 Kilometer von Heidelberg und ca. 35. Kilometer von Mannheim entfernt direkt an der B38 in klimatisch reizvoller Lage.

Die Nachbargemeinden sind Fürth, Grasellenbach, Wald-Michelbach, Mörlenbach und Heppenheim.

Lagekarte

Anbieter dieses Objekts

Hessische Landgesellschaft mbH

Frau Birgit Röder
Nordendstr. 44
64546 Mörfelden-Walldorf

Telefon zeigen

Rückrufwunsch

Impressum des Anbieters

Objektanfrage

Bitte fülle das untenstehende Kontaktformular aus, um mit dem Anbieter in Kontakt zu treten.

Die mit * gekennzeichneten Felder sind vom Anbieter als Pflichtfelder vorgegeben.

Dein Anliegen

Anrede:     

Deine Nachricht an den Anbieter

Mit Absenden des Kontaktformulars werden Ihre personenbezogenen Daten auf elektronischem Weg an den Anbieter der Immobilie übermittelt. Gleichzeitig stimmen Sie zu, dass diese vom Anbieter zur Beantwortung Ihrer Anfrage erhoben und verarbeitet werden dürfen. Weitere Informationen zum Datenschutz »

Günstige Angebote für Dein neues Grundstück


Alle Angaben ohne Gewähr.